Fecha
2021
Localización
Gorafe (Granada)
Superficie
35 m2
Cliente
District Hive LVA
Arquitectura
Moho arquitectos. Dirección proyecto y Dirección obra: Carlos Abadia Suanzes-Carpegna, Pablo Garcia Mora, Ignacio Bautista Ruiz. Guido Cannilla, Angel Garcia Navarro, Javier Mateo Lajarin Sergio Morales interiorista. Diseño
Diseño Interior
Novono Interiorismo Moho arquitectos District Hive (Priyesh Patel)
Construcción
Cartonlab
Imágenes
Dani Guindo
Este reto de diseño arquitectónico es una de las aventuras más estimulantes en las que nos hemos involucrado. Un hotel cápsula modular autónomo, nómada y sostenible planteado por District Hive y construido por Moho Arquitectos en colaboración con Cartonlab.

El primer destino elegido por District Hive para ubicar su podtel es un lugar impresionante situado en Gorafe (Granada). Orientado hacia un impresionante geoparque y bajo uno de los mejores cielos de Europa para ver las estrellas. Ideal para recargar energía e integrarse en el entorno sin renunciar a la comodidad y a la tecnología. Está diseñado e ideado como el primero de la llamada ‘Colonia Podtel‘, un concepto innovador de alojamientos de lujo autónomos de alta gama que estarán esparcidos por diferentes puntos del mundo, todos ellos recónditos y con las vistas más espectaculares.

La mejor reducción de la huella ambiental es no llegar a generarla. Y eso es lo que se busca con District Hive a través de una serie de dispositivos que lo convierten en un pequeño hogar autosuficiente. No requiere estar conectado a ningún servicio público de suministro, aunque cuenta con todas las comodidades. El sol es su fuente de energía, con una autonomía de hasta 4 días en condiciones de nubes y mal tiempo.

El agua, fresca y limpia, la produce el propio hotel, gracias a un sistema que la extrae de la humedad del aire. Una vez utilizada, las aguas grises resultantes se tratan y se emplean para el riego de la zona exterior. Los residuos orgánicos (aguas negras) también reciben un tratamiento, en este caso se convierten en cenizas.

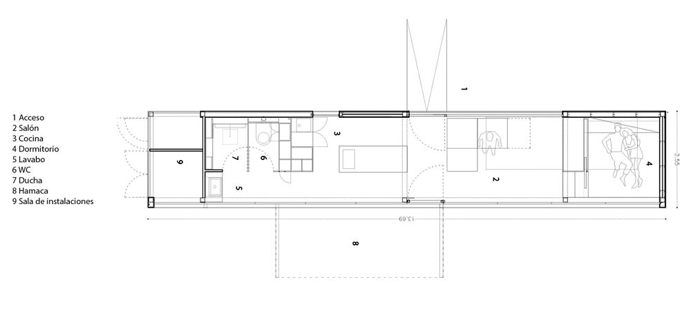
District Hive es un pequeño módulo de 35m2 dividido en varios espacios: un cuarto de baño, una cocina-estar-comedor, un dormitorio (una cama doble y dos individuales ocultas), armarios modulares multifuncionales y estanterías, y un pequeño y necesario cuarto de instalaciones donde se concentran todos los equipos técnicos. El podtel cuenta también con una terraza abierta con tumbonas para poder observar las estrellas.

No hay que preocuparse por ningún aspecto logístico, todo encaja gracias a los módulos de organización que generan diversos espacios de almacenamiento muy prácticos.

Todo está orientado a fusionarse con el entorno, desde las estancias hasta las zonas exteriores de descanso se convertirán en toda una experiencia inmersiva en la naturaleza.

Cada módulo es completamente autónomo, equipado y controlado por una APP del teléfono móvil. La inteligencia artificial se encarga de controlar la entrada, la iluminación, la temperatura, el sonido, la televisión o el catering. Todo está interconectado a través de la tecnología denominada ‘Hivemind’.

También la gestión energética. A través de algoritmos se controla la estancia, monitorizando la energía y el consumo de recursos, con balances de carga que informan sobre la autonomía. También se gestiona la seguridad a través de cámaras que enfocan al exterior y de avisadores de contingencias. De esta forma está garantizada la solución a cualquier problema inesperado.
La construcción del hotel nómada implica más de un traslado hasta su destino final. Inicialmente, la estructura metálica acristalada se transporta hasta el lugar en el que hay que dotarla de todas las comodidades. Eso implica el aislamiento, la instalación de sistemas de suministro, la tecnología que los gestiona y cada uno de los elementos que convierten el espacio en habitable.

Una vez listo, se carga de nuevo el módulo en un trailer rumbo a la ubicación elegida. Irá ya dotado de mobiliario, electrodomésticos, saneamientos e incluso menaje. Al llegar a su destino, solo habrá que colocarlo en un terreno previamente nivelado. No tiene cimentación ni requiere de ningún tipo de canalización, ni tuberías, ni saneamiento. El sistema de apoyo desarrollado cuenta con 6 patas que, a modo de nave espacial, se posan sobre el terreno.
Reportaje en National Geographic
Entrevista en Cadena Cope
Reportaje en España Directo de RTVE
Reportaje en Sputnik Mundo
Noticia en :
Designboom
El País
Arquitectura y Diseño
NIUS
Hospitalitynet
El Economista
Infobierzo
Revista Hostelería
Tecno Hotel
Córdoba Buenas Noticias
Tele 5 (web)
Viajar (El Periódico)
Huffington Post
La Razón
ABC
Expansión
Murcia Plaza
Le Figaro
Ideal
